Roof Tag Revit 2014

Revit Wall Tags And Wall Types Legend School Architecture Tags Structure Architecture

Revit Wall Tags And Wall Types Legend School Architecture Tags Structure Architecture

Trellis Modelling With Glazing Roof Option Trellis Autodesk Revit Autodesk

Trellis Modelling With Glazing Roof Option Trellis Autodesk Revit Autodesk

What Revit Wants How To Tag Ramp Slopes In Revit 2013 And Revit 2014 With Slot Slope Tool Ramp Tags Tools

What Revit Wants How To Tag Ramp Slopes In Revit 2013 And Revit 2014 With Slot Slope Tool Ramp Tags Tools

Youtube Floor Plans Structure Architecture Fundamental

Youtube Floor Plans Structure Architecture Fundamental

Pin On Revit Arc 2014 Essential Training

Pin On Revit Arc 2014 Essential Training

Revit Architecture 2011 Beginners Tutorial 1 Interface Via Youtube Revit Architecture Revit Tutorial Learn Autocad

Revit Architecture 2011 Beginners Tutorial 1 Interface Via Youtube Revit Architecture Revit Tutorial Learn Autocad

Revit Architecture 2011 Beginners Tutorial 1 Interface Via Youtube Revit Architecture Revit Tutorial Learn Autocad

Revit roof tag create a new family using the generic tag template.

Roof tag revit 2014.

If you try to add a roof on the lowest level a dialog prompts you to move it to a higher level. Revit in plain english by jay polding is licensed under a creative commons attribution noncommercial noderivs 3 0 unported license. The example below will show how to setup a new tag for a roof but this process can be used for any tag that doesn t have a default family in revit such as pipe accessories. Autodesk revit out of the box has an array of different primitive shapes including dome.

If you choose not to move the roof to a different level revit notifies you later if the roof is too low. There are no default roof tags that i have found. Use the revit family editor to modify existing elements or create new ones to meet the. Load into project and tag roofs.

So here s how you make one in three easy steps. Start a new family and use the generic annotation template. Creating complex sloping roofs in revit 2014 roof junctions controlling roof slopes and levels. Download manufacturer approved bim content for roofs.

Change the family category to roof tags then press ok. 2014 16 december 2 september 3 july 2 april 1. For example the structural members walls roofs windows and doors that you use to assemble a building model as well as the callouts fixtures tags and detail components that you use to document it are created with families. Then in the family category parameters dialog switch it to be assigned to the roof category.

By using our dwg we find the slopes of two roof lines and their elevations for the rafter cut a simple two line. After placing the mass an elevation view is needed to adjust the shape of the dome to the desired roof dimensions being careful not to make the roof too steep. On the draw panel select a sketch or pick tool. In this video we explore an alternate method of creating a roof in revit.

Click architecture tab build panel roof drop down roof by footprint. From the ribbon create tab text panel label.

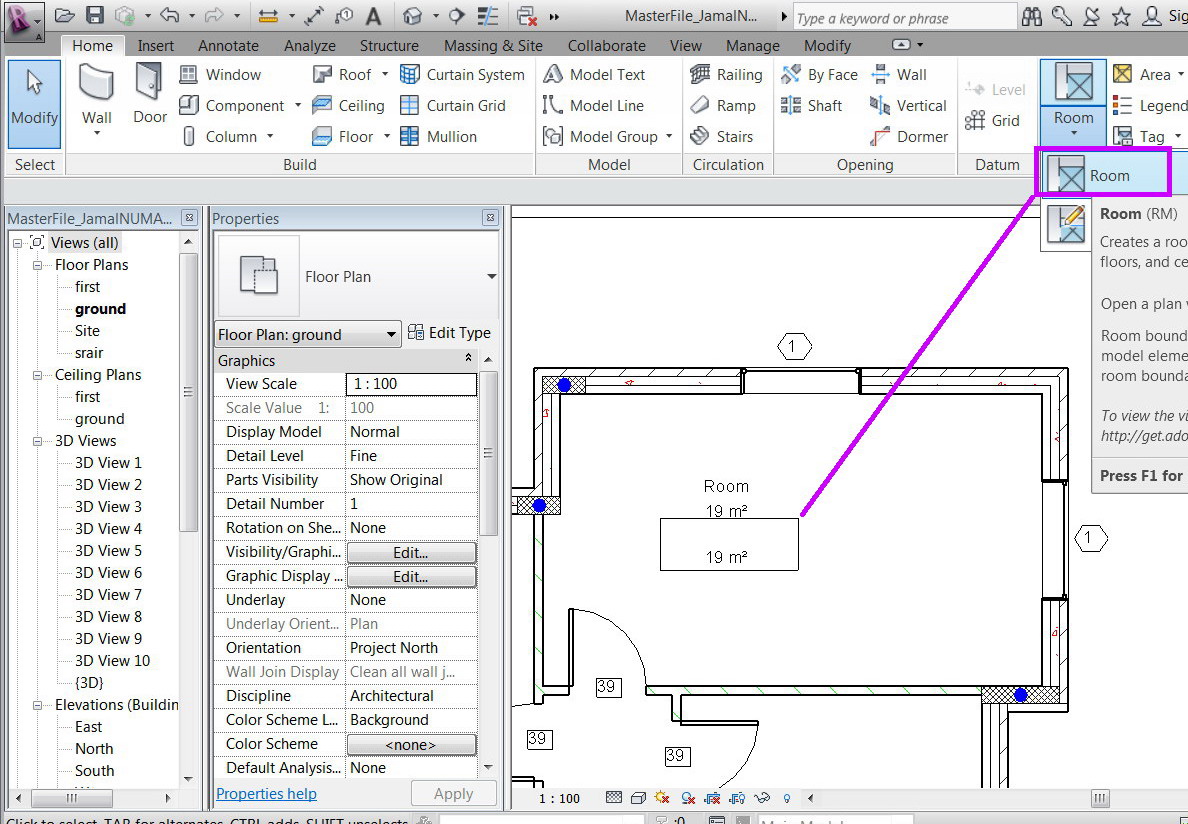
Solved Can T Edit The Room Tag Autodesk Community Revit Products

Solved Can T Edit The Room Tag Autodesk Community Revit Products

Cadclip Revit 2014 Parts For Wall Cladding Rocks Youtube Wall Cladding Case Study Design Revit Architecture

Cadclip Revit 2014 Parts For Wall Cladding Rocks Youtube Wall Cladding Case Study Design Revit Architecture

A B C D Elevation Marks Youtube Elevation Autocad Marks

A B C D Elevation Marks Youtube Elevation Autocad Marks

Decals In Revit Paneling How To Apply Projects

Decals In Revit Paneling How To Apply Projects

Source : pinterest.com